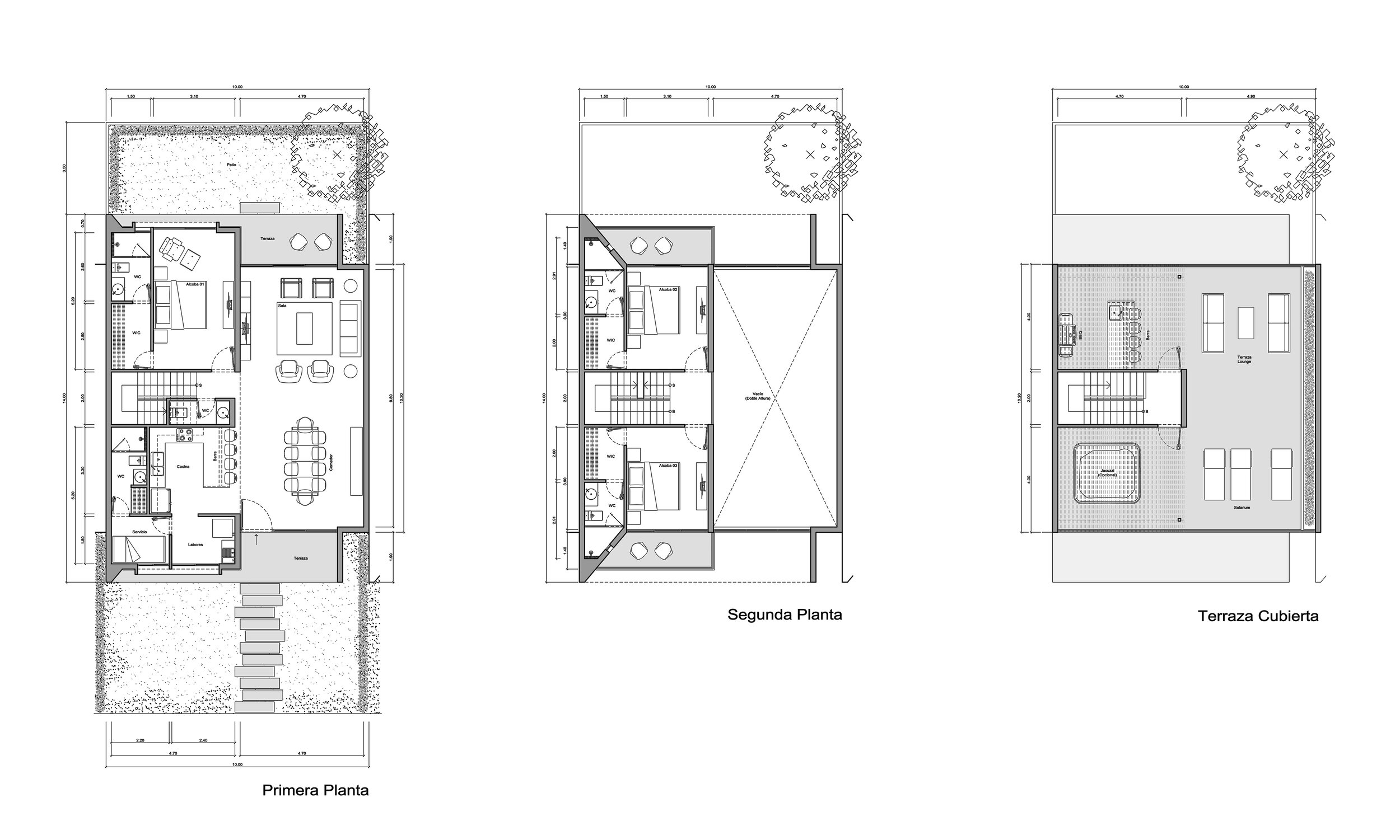
BarΓΊGrande Townhouses

| Program: 18 Country Townhouses | Client: Proinvest Ltda. | Location: BarΓΊ Island. Cartagena, Colombia | Year: 2019 |